Luxury Villas & Property for Sale and Rent in Koh Samui, Thailand

6 bed 5.5 bath Villa For Sale in Mae Nam – HS0879

  • ฿11,000,000
North East 
For Sale
6 bed 5.5 bath Villa For Sale in Mae Nam – HS0879
North East 
  • ฿11,000,000

Overview

Property ID: HS0879
  • 6
  • Bedrooms
  • 5.5
  • Bathrooms
  • yes
  • Pool
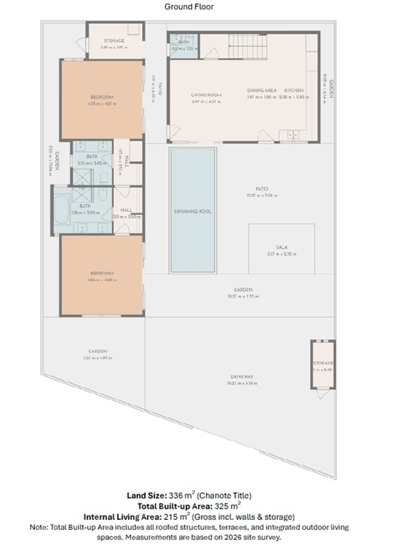
  • 336
  • Lot m²

Description

Set within a peaceful residential enclave in Maenam, this spacious family villa is thoughtfully designed in an L-shaped configuration over two levels, wrapping around a central swimming pool with patio, garden, and traditional sala—perfect for relaxed tropical living and entertaining.

The property is arranged across two separate buildings, connected by an upper terrace that enhances privacy while maintaining a cohesive flow throughout the home. The main building features a bright open-plan living space comprising a fully fitted kitchen, dining area, and TV lounge. Floor-to-ceiling glass patio doors open directly onto the pool terrace, creating a seamless indoor-outdoor lifestyle. A convenient guest w/c completes this level. Upstairs, stairs lead to an open terrace area and a generous bedroom with an en-suite bathroom, ideal as a private master suite or guest retreat.

The second building offers excellent accommodation flexibility. On the lower level are two double bedrooms, both with en-suite bathrooms and direct pool access, along with a useful storage room. The upper level houses two single bedrooms that share a bathroom, making them ideal for children or guests, as well as an additional double bedroom with its own en-suite bathroom.

Externally, the villa benefits from an electric entrance gate, a spacious driveway, and fully walled grounds, creating a secure and private environment well suited to family living or long-term rental.

Ideally located in Maenam, the property sits in the heart of Koh Samui’s north coast. Shops, bars, restaurants, and the golden sands of Maenam Beach are all within a convenient five-minute drive, offering the perfect balance between tranquility and accessibility.

This well-designed villa presents an excellent opportunity for a comfortable family residence or a versatile investment property.

Built up are =325 Sqms

Internal living area = 215 Sqms

Address

  • Area Mae Nam, North East

Schedule a Tour in the next 7 days

Tour Type

Compare listings

Compare
craig
  • craig